PHOTO GALLERY
DESIGN BOARD
PROJECT DETAILS
The brief: The clients wanted a versatile garden building that could serve as an office, gym, and additional accommodation for visiting family members. With young children and extended family, it was important that the space worked well for everyone while maintaining a modern, sophisticated look. The building needed to be functional, stylish, and seamlessly integrated into the garden.
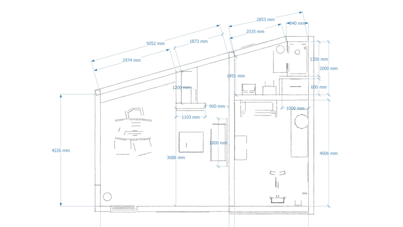
Interior: Inside, the mobile home reflects the clean and contemporary style of the exterior, with white walls and ceilings balanced by natural timber elements. Two tall sliding doors with oak acoustic panels add both style and function. Engineered flooring runs continuously from the gym to the office and kitchen, creating a cohesive feel. The compact kitchen includes sand-coloured cabinets and integrated appliances, while the bathroom feels spacious thanks to a tall ceiling and large marble-effect tiles. Black fixtures, from the taps to the shower enclosure and towel rail, provide a striking contemporary contrast.
Exterior: The building has the appearance of two connected volumes: a standard-height main section finished in white render to match the house, and a taller gym section with bold timber cladding that transitions from horizontal boards to vertical orientation, creating a striking frame around the large fixed glass panel that overlooks the garden. Large sliding doors, a full-height window, and skylights bring light into the space. With no-maintenance metal cladding used on the sides and back, the building is designed to last while taking up the full width of the garden.
The result: The mobile home has become a cherished addition to this busy household, enjoyed by every family member. To complete the project, our team also built a composite decking area and path with integrating LED lighting, connecting the main house to the new space. A tiled paving edge to frame the lawn and new horizontal timber fencing panels were also installed to complement the exterior cladding while providing extra privacy. The result is a functional, contemporary garden space that enhances both family life and the garden’s aesthetic.
READY TO CREATE YOUR DREAM SPACE?
Ready to Build Your Dream space?
Getting started is simple:
1. Submit your details using the form below. You’ll receive an instant confirmation email.
2. We’ll review your information and call you shortly after to discuss your ideas and schedule your free site survey.
Prefer to talk now? Call us directly on 01273 044 507 or email us at hello@aroominthegarden.co.uk. We’re available Monday to Friday, 8:30 am to 5:00 pm.
Your privacy is our priority. We never sell your data, keep client identities confidential, and promise no spam.




















